一體化污水處理設備工藝圖
一體化污水處理設備工藝圖
概述: 一體化污水處理設備工藝圖得確定,需要按照其項目需求 處理后的達標級別來選擇處理工藝,A級工藝、B級工藝的工藝圖是不一樣的。還有直排標準,回用標準的工藝圖都略有差別,今天小編帶大家來了解一下 A級工藝和B級工藝的一體化污水處理設備工藝圖,
一、先來了解A級工藝的工藝圖
根據客戶不同的選擇A級工藝可以選擇MBR膜工藝、BFTR工藝轉盤濾池工藝等主流的工藝設計,轉盤濾池工藝前期投資少高一些,但是后期應用的費用會省很多,且不容易杜塞,MBR膜工藝是前幾年一直在用的一種工藝,這幾種工藝的一體化污水處理設備工藝都各有不同。這幾種處理工藝技術都很成熟,選擇哪種還需要客戶自己權衡,但是處理后的水質都能達到A級標準,都可穩定持續出水。

MBR一體化污水處理設備工藝圖

PP材質的一體化污水處理設備工藝流程圖
QDPP一體化污水處理設備因自身的材質優勢,被搶定,現在的派單已經排到3個月以后了,非常火爆,在這里簡單的跟大家介紹一些這個設備的一些基本情況,QDPP一體化污水處理設備是以原材料命名,是一種高分子新材料的設備。因該材料的設備是用模具制作一體成型,故均以罐體呈現,中僑啟迪研發團隊根據該罐體形式攻堅克難,并借鑒與改良西方國家技術, 針對我國農村污水現狀和排放標準,在此基礎上研發出了:中僑罐臥罐A/B、中僑罐立罐A/B、中僑罐中空 罐等系列一體化污水處理設備。
QDPP一體化污水處理設備優勢
1、質輕韌性好
材質密度:0.90-0.91g/cm3能承受70 000 000次開閉的折疊彎曲,無損壞痕。
2、可設計性好
能根據需求靈活設計各種結構產品,滿足產品的性能。
3、優良耐腐蝕性
可根據使用介質要求來配套相應的材質,對任何液體都有著好的抵抗能力。
4、抗老化性能好
加入抗老化劑,有效延緩設備老化,增加使用壽命。
5、整體性好
采用世界先進的螺旋纏繞疊加成型工藝,罐體一次加工成型,無焊縫。
6、性價比高
與其他材質設備相比, QDPP—體化設備性價比高。
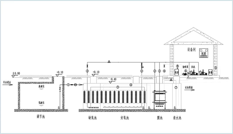
二、B級工藝的一體化污水處理設備工藝圖

AO工藝的一體化污水處理設備工藝圖

QDPP一體化污水處理設備B級出水,一體化污水處理設備的工藝圖
MBBR+AO工藝,
下面是MBBR+AO工藝的一體化污水處理設備工藝圖

MBBR一體化污水處理設備工藝圖
以上便是經常使用的工藝流程圖,想了解更多的工藝流程圖資料可以聯系我們的網站客服,我們會根據您的實際情況幫您設計方案,報價 。因為我們是源頭生產廠家,可以放心合作,各方面的優勢很多,像質量優勢、價格優勢、售后服務優勢都沒有問題。歡飲您來廠考察合作!
