mbr一體化污水處理設備配置
mbr一體化污水處理設備配置
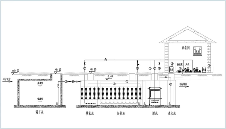
mbr一體化污水處理設備配置裝備組成
mbr一體化污水處理上設備 配置由格柵 調節池 缺氧池 好氧池 膜池 清水池 設備間 等
說明
MBR一體化污水處理設備是采用了傳統的流化床和生物接觸氧化法兩者的優點,經過反復試驗、研發而成的一種新型的污水處理方法。采用優質的比重接近于水的懸浮填料直接投加到曝氣池中作為微生物的活性載體,依靠曝氣池內的曝氣和水流的提升作用處于流化狀態,它是懸浮生長的活性污泥法和附著生長的生物膜法相結合的一種工藝。與以往的填料不同的是,懸浮填料能與污水頻繁多次接觸,因此被稱為“移動的生物膜”
mbr一體化污水處理設備配置應用于污水處理項目中的優勢
出水水質好,運行成本低、系統抗沖擊性強、污泥量少,自動化程度高等,另外,作為一體化污水處理設備,其具有占地面積小,便于集成。它既可以作為小型的污水回用設備,又可以作為較大型污水處理廠(站)的核心處理單元,是目前污水處理領域研究的熱點之一,具有廣闊的應用前景。
mbr一體化污水處理設備配置特點:
1.mbr一體化污水處理設備配置,不必設立沉淀、過濾等其他固液分離設備的固液分離將廢水中的懸浮物質、膠體物質、生物單元流失的微生物菌群與口凈化的水分開,不須經三級處理即直接可回用、排放。投資省費用低。
2.mbr一體化污水處理設備配置不需要反清洗,節省投資低。
3.mbr一體化污水處理設備配置不需要離線清洗,操作維護簡單方便。
4.無剩余污泥產生,節省固廢處理費用。
5.采用混沌云全自動智能化控制,*專人看守,設備操作簡單,每月一次定期巡檢遠程在線監控,及時發現并解決問題。
6.mbr一體化污水處理設備配置外觀精美,環境融洽,適用于風景旅游景區、村鎮、醫院、大學、社區、工廠、公路服務區、高鐵站等。

